| 印刷画面 |
売買 一戸建 No.2933
おすすめpoint陽当たり良好、バス停近く! スーパー・学校も近く生活利便性良好です!
| 種別 | 一戸建 | 価格 | 3000万円 |
|---|---|---|---|
| 土地面積 | 191.75㎡ (58.00坪) | 建物面積 | 86.18㎡ (26.06坪) |
| 所在地 | 鹿児島市吉野町3073-7 | ||
|---|---|---|---|
| 交通 | 南国交通「帯迫」バス停徒歩3分 | ||
| 土地権利 | 所有権 | 都市計画 | 市街化区域 |
| 用途地域/地目 | 第1種低層住居専用地域/宅地 | 建蔽率/容積率 | 50%/80% |
| 建物構造 | 木造平家建 | 築年月 | 平成17年11月 |
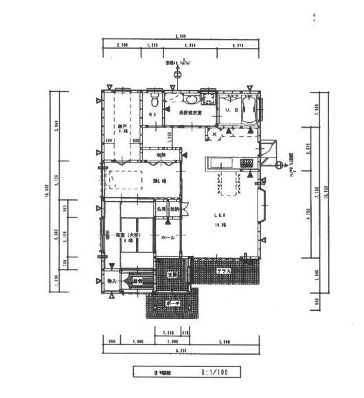
| 間取 | 2LDK/LDK16.8、洋5.0、和6.0、納戸4.4 | ||
| 駐車場 | 有 | 接道状況 | 公道一方 |
| 私道面積 | なし | 校区(小/中) | 吉野小 徒歩11分 / 吉野中 徒歩8分 |
| 設備 | 上水道 下水道 | ||
| 特記事項 | |||
| 現況 | 空 | 引渡し | 相談 |
| 備考 | |||
| 取引態様 | 媒介 | 物件登録日 | 2025年06月23日 |
売買物件一覧
- [土地] 鹿児島市田上台1丁目/350万円
- [土地] 霧島市隼人町姫城1丁目/600万円
- [土地] 鹿児島市伊敷7丁目/980万円
- [土地] 鹿児島市小原町/1200万円
- [土地] 鹿児島市紫原3丁目/1550万円
- [土地] 鹿児島市魚見町/1750万円
- [土地] 鹿児島市皇徳寺台5丁目/2000万円
- [土地] 鹿児島市東谷山1丁目/2000万円
- [土地] 鹿児島市天保山町/5870万円
- [一戸建] 鹿児島市清和2丁目/1100万円
- [一戸建] 鹿児島市紫原3丁目/1550万円
- [一戸建] 鹿児島市皇徳寺台4丁目/1580万円
- [一戸建] 鹿児島市玉里団地2丁目/1600万円
- [一戸建] 鹿児島市桜ヶ丘6丁目/2280万円
- [一戸建] 鹿児島市日之出町/2700万円
- [一戸建] 鹿児島市吉野町/3000万円
- [一戸建] 鹿児島市西紫原町/3700万円
- [一戸建] 鹿児島市鴨池1丁目/7000万円
- [倉庫] 鹿児島市小山田町/3000万円
- [店舗] 南九州市知覧町郡/5500万円
- [ビル] 鹿児島市新屋敷町/15000万円





